Works施工実績

Works施工実績

中城村民体育館2階空調設備新設工事

  • 安全ミーティング状況

  • 空調機搬入状況

  • 空調機用リモコン納品状況

  • サブアリーナ空調機室内機22.4kw 1台納品状況

  • サブアリーナ空調機室外機22.4kw 1台納品状況

  • サブアリーナ空調機用リモコン納品状況

  • トレーニングルーム空調機室内機22.4kw 1台納品状況

  • トレーニングルーム空調機室外機22.4kw 1台納品状況

  • トレーニングルーム空調機用リモコン納品状況

  • 冷媒配管(被覆銅管)納品状況

  • ドレン管(硬質ポリ塩化ビニル管)断熱ドレンホース納品状況

  • 化粧カバー(スリムダクト)納品状況

  • 内外連絡線(VVF2.0㎜-3C) アース線(IV 1.6㎜) リモコン線(VCTF0.5㎟-2C)納品状況

  • コンクリート架台 室外機転倒防止金具 納品状況

  • 室外機用Lアングル架台 室外機転倒防止金具 納品状況

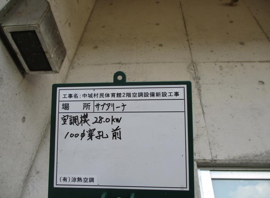
  • 冷房能力28.0kw 100Φ穿孔前

  • 冷房能力28.0kw 100Φ穿孔作業状況

  • 冷房能力28.0kw 100Φ穿孔後

  • 冷房能力22.4kw 100Φ穿孔前

  • 冷房能力22.4kw 100Φ穿孔作業状況

  • 冷房能力22.4kw 100Φ穿孔後

  • 冷房能力22.4kw 100Φ穿孔前

  • 冷房能力22.4kw 100Φ穿孔作業状況

  • 冷房能力22.4kw 100Φ穿孔後

  • 冷房能力28.0kw 室内機設置前

  • 冷房能力28.0kw 室内機設置状況

  • 冷房能力28.0kw 室内機設置後

  • 冷房能力28.0kw 室外機設置前

  • 冷房能力28.0kw 室外機設置状況

  • 冷房能力28.0kw 室外機設置後

  • 冷房能力28.0kw リモコン線 化粧カバー(プラモール) 施工前

  • 冷房能力28.0kw リモコン線 化粧カバー(プラモール) 施工後

  • 冷房能力28.0kw リモコン設置後

  • 冷房能力22.4kw 室内機設置前

  • 冷房能力22.4kw 室内機設置状況

  • 冷房能力22.4kw 室内機設置後

  • 冷房能力22.4kw 室内機設置後

  • 冷房能力22.4kw 室内機設置後

  • 冷房能力22.4kw 室内機設置後

  • 冷房能力22.4kw リモコン線 化粧カバー(プラモール) 施工前

  • 冷房能力22.4kw リモコン線 化粧カバー(プラモール) 施工後

  • 冷房能力22.4kw リモコン設置後

  • 冷房能力22.4kw 室内機設置前

  • 冷房能力22.4kw 室内機設置状況

  • 冷房能力22.4kw 室内機設置後

  • 冷房能力22.4kw 室外機設置前

  • 冷房能力22.4kw 室外機用Lアングル架台 設置状況

  • 冷房能力22.4kw 室外機設置状況

  • 冷房能力22.4kw 室外機設置後

  • 冷房能力22.4kw リモコン設置前

  • 冷房能力22.4kw リモコン設置後

  • 冷房能力28.0kw 室外機転倒防止金具 取付後

  • 冷房能力22.4kw 室外機転倒防止金具 取付後

  • 冷房能力22.4kw 室外機転倒防止金具 取付後

  • 冷房能力28.0kw 冷媒配管 化粧カバー(スリムダクト) 施工前

  • 冷房能力28.0kw 冷媒配管施工状況 (ガス溶接作業状況)

  • 冷房能力28.0kw 冷媒配管 施工状況

  • 冷房能力28.0kw 冷媒配管 施工状況

  • 冷房能力28.0kw 冷媒配管 施工後

  • 冷房能力28.0kw 室内側 冷媒配管、ドレン管 施工後

  • 冷房能力28.0kw 化粧カバー(スリムダクト) 施工状況

  • 冷房能力28.0kw 化粧カバー(スリムダクト) 施工状況

  • 冷房能力28.0kw 化粧カバー(スリムダクト) 施工後

  • 冷房能力28.0kw ドレン管 施工前

  • 冷房能力28.0kw ドレン管 施工状況

  • 冷房能力28.0kw ドレン管 施工後

  • 冷房能力22.4kw 冷媒配管 化粧カバー(スリムダクト) 施工前

  • 冷房能力22.4kw 冷媒配管施工状況 (ガス溶接作業状況)

  • 冷房能力22.4kw 冷媒配管施工状況 (ガス溶接作業状況)

  • 冷房能力22.4kw 冷媒配管 施工状況

  • 冷房能力22.4kw 冷媒配管 施工後

  • 冷房能力22.4kw 室内側 冷媒配管、ドレン管 施工後

  • 冷房能力22.4kw 化粧カバー(スリムダクト) 施工状況

  • 冷房能力22.4kw 化粧カバー(スリムダクト) 施工状況

  • 冷房能力22.4kw 化粧カバー(スリムダクト) 施工後

  • 冷房能力22.4kw ドレン管 施工前

  • 冷房能力22.4kw ドレン管 施工状況

  • 冷房能力22.4kw ドレン管 施工後

  • 冷房能力22.4kw 冷媒配管 化粧カバー(スリムダクト) 施工前

  • 冷房能力22.4kw 冷媒配管施工状況 (ガス溶接作業状況)

  • 冷房能力22.4kw 冷媒配管 施工状況

  • 冷房能力22.4kw 冷媒配管 施工状況

  • 冷房能力22.4kw 冷媒配管 施工後

  • 冷房能力22.4kw 室内側 冷媒配管、ドレン管 施工後

  • 冷房能力22.4kw 化粧カバー(スリムダクト) 施工状況

  • 冷房能力22.4kw 化粧カバー(スリムダクト) 施工後

  • 冷房能力22.4kw 化粧カバー(スリムダクト) 施工後

  • 冷房能力22.4kw ドレン管 施工状況

  • 冷房能力22.4kw ドレン管 施工状況

  • 冷房能力22.4kw ドレン管 施工後

  • 冷房能力28.0kw 気密試験 令和3年11月9日 10:00 開始 窒素圧力 4.15Mpa

  • 冷房能力28.0kw 気密試験 令和3年11月10日 13:05 終了 窒素圧力 4.15Mpa

  • 冷房能力28.0kw 真空引き状況

  • 冷房能力22.4kw 気密試験 令和3年11月9日 15:40 開始 窒素圧力 4.15Mpa

  • 冷房能力22.4kw 気密試験 令和3年11月10日 15:40 終了 窒素圧力 4.15Mpa

  • 冷房能力22.4kw 真空引き状況

  • 冷房能力22.4kw 気密試験 令和3年11月9日 9:30 開始 窒素圧力 4.15Mpa

  • 冷房能力22.4kw 気密試験 令和3年11月10日 9:30 終了 窒素圧力 4.15Mpa

  • 冷房能力22.4kw 真空引き状況

  • 冷房能力28.0kw 試運転調整 絶縁抵抗測定状況

  • 冷房能力28.0kw 試運転調整 電源電圧測定状況

  • 冷房能力28.0kw 試運転調整 運転電流測定状況

  • 冷房能力22.4kw 試運転調整 絶縁抵抗測定状況

  • 冷房能力22.4kw 試運転調整 電源電圧測定状況

  • 冷房能力22.4kw 試運転調整 運転電流測定状況

  • 冷房能力22.4kw 試運転調整 絶縁抵抗測定状況

  • 冷房能力22.4kw 試運転調整 電源電圧測定状況

  • 冷房能力22.4kw 試運転調整 運転電流測定状況

中城南小学校薬品洗浄

  • 室内機分解状況

  • 室内機分解状況

  • 室内機ファン詰まり状況

  • 空調機室内機 養生状況

  • 室内機薬品洗浄後 排水汚れ状況

  • 室内機ファン 薬品洗浄後

  • 空調機室内機 パネル洗浄前

  • 壁掛形室内機 パネル洗浄後

  • 室内機組立後

ルームエアコン洗浄作業工事

エコキュート

ひかり部品

保守